
每個人的審美與需求,價值觀不同,對裝修的看法都是不一樣的。但是,盡管是這樣,大致對家的向往可能是一致的。對于現在快節奏的生活來說,我們更喜歡家里裝修簡單,耐看并且溫馨,這才是我們更多人向往的家,想要的裝修了!
很開心給大家帶來這套套內面積為89平新房,裝修偏北歐風格,整體的裝修效果真心不錯,可以看出來花了很多心思裝修,真的很不容易。見過很多裝修效果,說實在話的,這才是我們更多人向往的裝修,整個空間簡單又耐看,而且全屋還顯得很溫馨,太喜歡了,珍惜希望以后我家也能裝出這樣的效果。下面,帶大家一起來感受感受,也希望能給大家帶來好的裝修靈感!

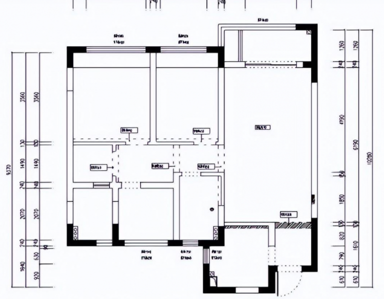
這是原始結構戶型圖,屬于比較典型的戶型了,套內面積僅有89平,但是也足夠滿足一家基本生活需求了!對于這樣的戶型,其實我們都比較常見,也不是那么陌生。動靜分區其實非常合理,盡管不是屬于南北通透的戶型。

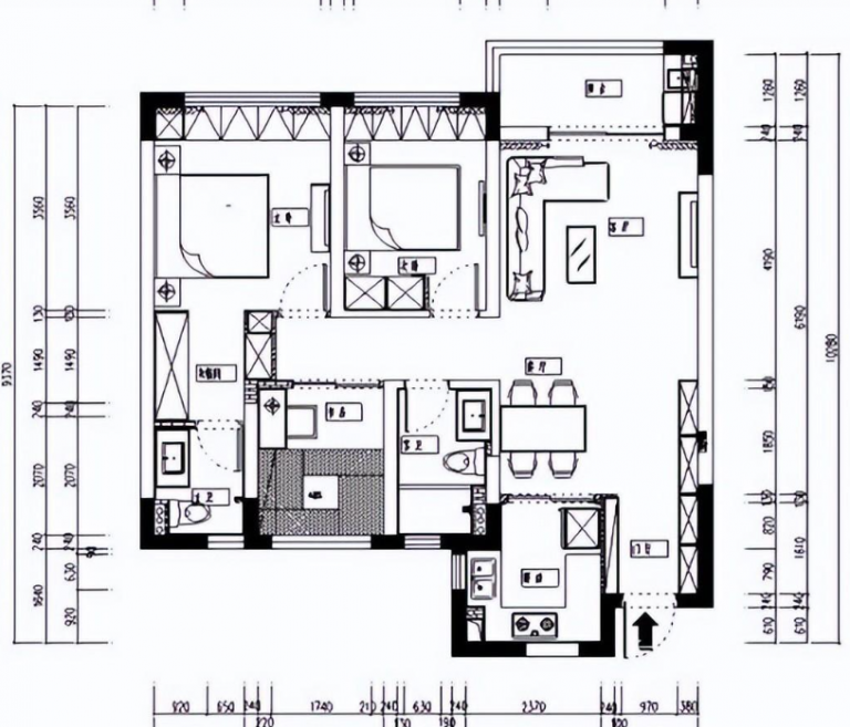
這是家具平面布置圖,其實最大的變動就是把主臥衣帽間打通,然后改了主衛的門洞,這樣設計就比原來的合理很多了。其他的話,基本都是按原始結構去布局和搭配了,如果你家也是這樣的戶型,可以參考這樣的設計!
入戶玄關

從入戶門進來擁有獨立的玄關,根據玄關空間兩邊都利用起來,其中一邊設計了入戶鞋柜,另外一邊設計了換鞋凳,包括安裝了掛鉤,可以掛包包或者衣物等。其實,入戶玄關兩邊這樣的設計,非常少見,但是很實用,不會讓人覺得有壓抑感,給人的感覺,很有設計感呢。柜子都是全屋定制的,質量與做工真心不錯,很是讓人喜歡!
入戶鞋柜分為上下兩層,中間留空位置可以放一些小物件的東西,不過最底下沒有留空位置。柜子都是選擇白色的,顯得很干凈。鞋柜旁邊布置了小餐邊柜,可以更為合理把空間利用起來,組合搭配起來更大氣。
餐廳

餐廳布置了一張原木方形餐桌,餐椅搭配了藍色的坐墊,坐著特別舒服,搭配起來不會讓人覺得單調,特別耐看。旁邊移動門進去就是廚房了,煮好的飯菜可以很快端出來,方便用餐。其實,不管是橫豎擺放,都沒有任何影響。一家人開開心心坐在一起用餐,很幸福!包括墻面安裝的吊燈,墻上懸著的裝飾畫,可以起到很好的裝飾效果,顯得很溫馨呢!
餐邊柜的款式真心不錯,顏值很高,原木色搭配白色,非常典型,看著很舒服。這種柜子直接買現成的,可以增加蠻不錯的儲物空間呢。家里如果也需要這樣的餐邊柜,非常值得給大家推薦使用!
客廳

這是客廳,裝修非常簡單,相信我們絕大部分的人都很向往這樣的家。裝修北歐風格,色調都能保持一致,而且局部搭配一些比較靚麗的顏色作為點綴,真心好看。電視墻是沒有做一點造型,直接刷了乳膠漆而已,簡簡單單,很耐看。以后不管入住時間再長,也不會讓人覺得容易過時了!
一般來說,電視墻不管是做不做,電視機一般都是懸掛起來,可以為電視柜節省一些空間,坐在沙發的角度看電視,剛好合適。并且搭配了原木色的電視柜,太滿意了。旁邊的位置,還布置了植物,可以起到很好的裝飾效果!

搭配了灰色沙發,坐著很舒服。中間布置茶幾為圓形組合式,一個白色一個原木色,而且加上了地毯,增加了視覺感,更顯得有檔次。家里如果需要地毯的話,還是很值得擁有的!
衛生間

這是公衛,空間合適做了干濕分離,主要是洗澡的時候不會把整個空間給弄濕了,做保潔會方便很多。并且搭配的浴室柜,顯得很個性,而且臺上盆,顏值很高呢!
陽臺

生活陽臺封起來,外面不管是刮風還是下雨都沒有任何影響,而且更為合理把陽臺空間利用起來。剛好的位置,定制了非常實用的洗衣柜,旁邊的位置可以放洗衣機,在這里,不管是手洗還是機洗,都沒有任何影響!
分享到這里就結束了,從入戶玄關到各個空間真的很讓人喜歡,這樣的裝修很多人向往的家,向往的裝修。